|
|
реклама
Рекламодатель: ООО "УК "КонтинентЪ", ИНН 7017208000 ИД креатива: LdtCKW5Ps

| |
|
Продам 2-этажное кирпичное здание
|
|
|
|
|
Объявление № 4872002
|
|
|
|
|
| Тип объекта |
Здание |
| Отделка |
черновая отделка |
| Общая площадь |
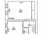
191 кв.м |
| Этаж/этажность |
Весь дом/2 |
|
|
| Есть пластиковые окна, интернет. |
| Описание |
|
Собственник. Продам по отличной цене отдельно стоящее двухэтажное здание в самом ЦЕНТРЕ Томска , общ.площадь - 191 кв.м по адресу пер.ПЛЕХАНОВА 5/1. Все центральные коммуникации (теплоснабжение, электричество 30 кВт, вода, канализация) . Идеально подойдет для медицинского учреждения, музкальной школы, учебных классов, небольшого производства ) Уникальность данного объекта в том - что он не граничит с жилым фондом . Легко можно увеличить площадь пероборудовав крышу в мансардный этаж ( потолки высотой 3, 5 метра) . Огромный автомобильный и пешеходный трафик .
При желании можно перевести в жилой фонд и сделать из здания коттедж в центре города. Цена для этого района - подарок . Здание без обременений - прямая продажа . Земля в собствственности . |
| Условия |
|
|
9 300 000 руб.
|
(48 690 руб. за м2). Срочно. Торг. Документы готовы.
|
|

|

|
Объявление № 4872002
Статистика
|
|
| Опубликовал: |
yakovkholin |
| Опубликовано: |
03 ноября 2025 |
| Истекает: |
12 февраля 2026 |
| Статус: |
Опубликовано
|
|
|
|
Недвижимоcть на карте
 |
 |
Поиск по критериям |
+387 |
 |
9264 |
 |
|
|
|
 |
реклама

|
|
|
 |
|
Предложений:283
|
|
|
Предложений:781
|
|
|
Предложений:18
|
|
|
Предложений:959
|
|
|
Предложений:52
|
|
|
Предложений:32
|
|
|
Предложений:290
|
| |
|
|
|
|
 |
|
 |
|