слабый снег, ветер: 5 м/c, СЗ, давление: 2 мм рт.ст., влажность: 33% -15°
Сделать стартовой

Продам 1-комнатную квартиру

Объявление № 5082500    
Квартира

Количество комнат  1
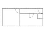
Общая площадь  33.5 кв.м
жилая  16 кв.м
кухня  10 кв.м
Этаж/этажность  2/2
Отделка  в хорошем состоянии
Санузел  совмещенный
в здании

село Богашево, Дом отдыха 3
Томский район
Этажность  2
Материал  дерево
Вид  вторичное
Описание

Однокомнатная квартира в кедровом лесу на границе Богашевского кедровника по ул. Дом отдыха 3.

Площадью 31, 4 кв.м. Находится на 2/2 этаже. Подъезд аккуратный, соседи тихие.

*Планировка. Кухонная зона 10 кв.м. Просторная комната 16, 1 кв.м. имеет квадратную форму и позволяет разместить в ней все необходимое.

*Расположение. Дом находится в 450 метрах от ул. Советская, что позволит добраться до шоссе или центра поселка в считанные минуты! Тихое и уютное место в кедровом лесу - можно любоваться видами и наслаждаться свежим воздухом!

*Комфорт. В квартире имеется бойлер. Отопление электрическое.

*Перепланировок нет

Дополнительно к квартире можно купить земельный участок пол сотки, он находится в 50 метрах от квартиры, на котором построены двухэтажная баня и гараж. Все находится в собственности и документы имеются .

Баня площадью 38.1 кв.м. с проведенным электричеством и водоснабжением. Отопление в бане печное. Наличие второго этажа позволяет разместить на нем вещи или переоборудовать его летнюю комнату для отдыха.

Просторный гараж с высокими и широкими воротами позволит хранить большой автомобиль.

Обременений нет. 1 взрослый собственник.

Все объекты от одного собственника и находятся в одном месте!

Звоните прямо сейчас, чтобы узнать все подробности! Не упустите свой шанс стать владельцем уютной квартиры с баней в лесу!
Карта    

Уменьшить
Увеличить
Условия

1 950 000 руб.
  (58 210 руб. за м2).

Контактная информация

Контактное лицо: АЖ Group

Телефон:

Единый центр недвижимости, агентство недвижимости

Объявление № 5082500     Статистика

Опубликовал: azbuka
Опубликовано: 05 декабря 2025
Истекает: 19 января 2026
Статус: Опубликовано Опубликовано
Поделиться

Похожие варианты (0) На карте

Добавить объявление
Недвижимоcть на карте
Поиск по критериям +9 9217

ПРОДАЮ

ОБМЕН

СДАЮ

СПЕЦИАЛЬНЫЕ ПРЕДЛОЖЕНИЯ (50)

Агентства недвижимости 

Самолет плюс - центр Томск

Предложений:273

Алатарцев.Недвижимость

Предложений:781

Грасиона

Предложений:17

Компания ЭТАЖИ

Предложений:993

ТДСК Инвест

Предложений:51

Агама

Предложений:32

Жилфонд

Предложений:287