|
|
реклама
Рекламодатель: ООО "УК "КонтинентЪ", ИНН 7017208000 ИД креатива: LdtCKW5Ps

| |
|
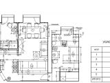
Продам 3-комнатную квартиру
|
|
|
|
|
Объявление № 5107618
|
|
|
|
|
| Количество комнат |
3 |
| Общая площадь |
67.5 кв.м |
| Этаж/этажность |
5/11 |
| Отделка |
в отличном состоянии |
| Санузел |
раздельный |
| Балкон/лоджия |
балкон, остекление |
|
|
|
Ленина проспект 195 (3)  | | Ленинский район |
| Этажность |
11 |
| Материал |
кирпич |
| Год постройки |
1998 |
| Вид |
вторичное |
|
|
|
| Описание |
|
| Квартира с дизайнерским ремонтом в самом центре кирпичного дома. Сделан капитальный ремонт для себя, из качественных материалов; была заменена вся разводка, демонтирована вся стяжка. Окна выходят на ул.Люксембург, дома всегда тихо и чисто. В гостиной и на кухне французские окна в пол, балкон застеклён, пластиковые стеклопакеты везде. На кухне тёплый пол, в гостиной кондиционер, по всей квартире принудительная приточная вентиляция. В спальне и кабинете установлены литые резные чугунные радиаторы на ножках, на кухне и в гостиной - удлинённые радиаторы, везде есть вентили. В доме автоматическая регуляция отопительного контура, что сильно экономит расходы на отопление. Во всей квартире установлены дорогие белые деревянные распашные двери с красивыми резными ручками-планками и одна откатная дверь из закалённого стекла. Входная дверь сейфовая Falko. На кухне остаётся гарнитур с нажимной системой открытия/закрытия дверок Hettich, встроенный холодильник Electrolux. В кабинете остаётся встроенная рабочая зона, состоящая из большого письменного стола с двумя пеналами по бокам и встроенный глубокий шкаф купе с двумя уровнями размещения по глубине. Во входной зоне - шкаф-купе с зеркальными полотнами и шкаф для хранения с распашными дверками. Около дома открытая парковка - места есть всегда. В шаговой доступности всё - магазины, школы, дет.сады, остановки общественного транспорта, аптеки, бассейн, спортивные площадки, детские игровые площадки. Дружелюбные адекватные тихие соседи. |
| Условия |
|
|
10 500 000 руб.
|
(155 560 руб. за м2).
|
|

|

|
Объявление № 5107618
Статистика
|
|
| Опубликовал: |
fafinix |
| Опубликовано: |
16 сентября 2025 |
| Истекает: |
15 декабря 2025 |
| Статус: |
Опубликовано
|
|
|
|
Недвижимоcть на карте
 |
 |
Поиск по критериям |
+9 |
 |
9190 |
 |
|
|
|
 |
реклама

|
|
|
 |
|
Предложений:273
|
|
|
Предложений:762
|
|
|
Предложений:17
|
|
|
Предложений:993
|
|
|
Предложений:51
|
|
|
Предложений:32
|
|
|
Предложений:287
|
| |
|
|
|
|
 |
|
 |
|