|
|
реклама
Рекламодатель: ООО "УК "КонтинентЪ", ИНН 7017208000 ИД креатива: LdtCKW5Ps

| |
|
Продам 1-комнатную квартиру
|
 |
|
|
|
Объявление № 5119140
|
|
|
|
|
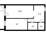
| Количество комнат |
1 |
| Общая площадь |
37.3 кв.м |
| кухня |
9.7 кв.м |
| Этаж/этажность |
14/14 |
| Отделка |
в хорошем состоянии |
| Санузел |
раздельный |
| Балкон/лоджия |
лоджия, остекление |
|
|
| Описание |
|
В продаже предлагается однокомнатная квартира с улучшенной планировкой по адресу Иркутский тракт, 183/2, расположенная в микрорайоне Молодежный. Занимающая площадь 37, 7 кв.м., квартира находится на 14-м этаже 14-этажного кирпичного здания, возведенного в 2011 году. Кроме того, у нее есть просторная лоджия с великолепным видом, который оценит каждый, кто стремится наслаждаться им ежедневно. Внутреннее пространство включает в себя удобную кухню-столовую и отдельную гостиную спальню. Недалеко расположены остановки общественного транспорта, детский сад, школа № 53, а также магазины и аптеки, что обеспечивает легкий доступ ко всем необходимым услугам. Не упустите шанс стать обладателем светлой и удобной квартиры. Чтобы узнать больше об этом объекте и записаться на просмотр, звоните с 09: 00 до 19: 00!!!
|
| Условия |
|
|
4 350 000 руб.
|
(116 620 руб. за м2). Ипотека. Материнский капитал. Приватизированная. Документы готовы.
|
|

|

|
Объявление № 5119140
Статистика
|
|
| Опубликовал: |
Vladimir87 |
| Опубликовано: |
19 декабря 2025 |
| Истекает: |
02 февраля 2026 |
| Статус: |
Опубликовано
|
|
|
 |
|
|
 |
|
|
|
|
|
1-комнатную квартиру | Иркутский тракт 174/2 (6)  Октябрьский район кирпич Год постройки:2009 | 14 этаж 14 всего | 33.4 м2 15.6 м2 жилая 10.6 м2 кухня | 4320 т.р. 129.34 за м2 |
|
|
|
01 ноября 2025.
КОНТАКТ: Альбина
ТЕЛ:
.
|
 |
|
Недвижимоcть на карте
 |
 |
Поиск по критериям |
+281 |
 |
8926 |
 |
|
|
|
 |
реклама

|
|
|
 |
|
Предложений:266
|
|
|
Предложений:764
|
|
|
Предложений:19
|
|
|
Предложений:879
|
|
|
Предложений:56
|
|
|
Предложений:32
|
|
|
Предложений:285
|
| |
|
|
|
|
 |
|
 |
|