|
|
реклама
Рекламодатель: ООО "УК "КонтинентЪ", ИНН 7017208000 ИД креатива: LdtCKW5Ps

| |
|
Продам 2-комнатную квартиру
|
 |
|
|
|
Объявление № 5133370
|
|
|
|
|
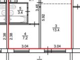
| Количество комнат |
2 |
| Общая площадь |
34.4 кв.м |
| кухня |
18 кв.м |
| Этаж/этажность |
14/17 |
| Отделка |
в хорошем состоянии |
| Санузел |
совмещенный |
| Балкон/лоджия |
лоджия, остекление |
|
|
| Кухня-студия. |
| Есть пластиковые окна. |
| Описание |
|
Уникальное предложение для тех, кто ищет комфортное жильё в динамично развивающемся районе! Продаётся 2-комнатная квартира студия в посёлке Зональная Станция, микрорайон Южные Ворота, по адресу улица Титова, 8. Квартира расположена на 14 этаже 17-этажного панельного дома, построенного в 2022 году. Из окон открывается вид на улицу и двор. Общая площадь квартиры составляет 34, 4 кв. м, в зале кухня-студия и отдельная спальня. Перепланировок в квартире нет. В квартире сделан косметический ремонт, от застройщика, комнаты изолированы. Совмещённый санузел. Квартира не угловая. Дом оборудован грузовым и пассажирским лифтом. Это отличная возможность стать владельцем современной и уютной квартиры в районе с развитой инфраструктурой. Не упустите шанс начать новую жизнь в новом доме! Позвоните нам прямо сейчас, чтобы узнать больше и записаться на просмотр. Мы гарантируем безопасную сделку и юридическую поддержку нашим Клиентам |
| Условия |
|
|
4 650 000 руб.
|
(135 170 руб. за м2). Срочно. Торг. Ипотека. Документы готовы.
|
|

|

|
Объявление № 5133370
Статистика
|
|
| Опубликовал: |
Vladimir87 |
| Опубликовано: |
01 декабря 2025 |
| Истекает: |
15 января 2026 |
| Статус: |
Опубликовано
|
|
|
|
Недвижимоcть на карте
 |
 |
Поиск по критериям |
+264 |
 |
9248 |
 |
|
|
|
 |
реклама

|
|
|
 |
|
Предложений:282
|
|
|
Предложений:781
|
|
|
Предложений:16
|
|
|
Предложений:980
|
|
|
Предложений:52
|
|
|
Предложений:32
|
|
|
Предложений:283
|
| |
|
|
|
|
 |
|
 |
|