|
|
реклама
Рекламодатель: ООО "УК "КонтинентЪ", ИНН 7017208000 ИД креатива: LdtCKW5Ps

| |
|
Продам 2-комнатную квартиру
|
 |
|
|
|
Объявление № 5137790
|
|
|
|
|
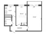
| Количество комнат |
2 |
| Общая площадь |
43.4 кв.м |
| жилая |
27.5 кв.м |
| кухня |
6.1 кв.м |
| Этаж/этажность |
1/5 |
| Отделка |
в хорошем состоянии |
| Санузел |
совмещенный |
| Балкон/лоджия |
балкон |
|
|
| Описание |
|
Продается двухкомнатная квартира на первом этаже пятиэтажного панельного дома. Общая площадь 43, 4 м включает просторную жилую зону (27, 5 м) и удобную кухню 6, 1 м. Квартира находится в хорошем состоянии после косметического ремонта: ровные потолки, свежие обои, замененная электропроводка с новыми розетками. Раздельные комнаты позволяют комфортно разместиться семье из 2-3 человек. Санузел отделан кафелем, сантехника частично заменена. Установлены теплые пластиковые окна с надежной герметизацией — отсутствуют сквозняки и промерзание, в квартире поддерживается комфортная температура зимой. Балкон застеклен и отделан евровагонкой. Окна выходят в сторону палисадника с зоной отдыха, что обеспечивает тишину и приватность. В подвале дома имеется кладовая для хранения вещей. В продажу включен шкаф-купе в комнате и прихожая, остальная мебель может быть передана по договоренности. Двор тихий, без сквозного проезда, с детской площадкой и парковочными местами. В непосредственной близости расположены детские сады и школа, что делает локацию удобной для семей с детьми. В шаговой доступности — торговые центры, остановки общественного транспорта с маршрутами во все районы города. Квартира подходит как для постоянного проживания, так и для инвестиции. Два взрослых собственника готовы к сделке. Данная квартира — оптимальный вариант для тех, кто ценит практичность и комфорт. Код пользователя: 174351 Номер в базе: 8819741 |
| Условия |
|
|
4 600 000 руб.
|
(105 990 руб. за м2).
|
|

|

|
Объявление № 5137790
Статистика
|
|
| Опубликовал: |
ries_etagi |
| Опубликовано: |
30 ноября 2025 |
| Истекает: |
14 января 2026 |
| Статус: |
Опубликовано
|
|
|
 |
|
|
 |
|
|
|
|
|
2-комнатную квартиру | Ивана Черных 109/2 (1) Октябрьский район панель Год постройки:1972 | 1 этаж 5 всего | 43.4 м2 27.5 м2 жилая 6.1 м2 кухня | 4600 т.р. 105.99 за м2 |
|
|
|
13 ноября 2025.
КОНТАКТ: Елена
ТЕЛ:
.
|
 |
|
|
|
2-комнатную квартиру | Беринга 5 (1)  Октябрьский район панель Год постройки:1972 | 3 этаж 5 всего | 43 м2 | 4570 т.р. 106.28 за м2 |
|
|
|
05 ноября 2025.
КОНТАКТ: Жильцов Артур
ТЕЛ:
.
Лига
|
 |
|
|
|
2-комнатную квартиру | Лазарева 2 (1)  Октябрьский район панель Год постройки:1973 | 4 этаж 5 всего | 45 м2 | 4700 т.р. 104.44 за м2 |
|
|
|
05 ноября 2025.
КОНТАКТ: Арзу "АН ВАНДОМ"
ТЕЛ:
.
Вандом
|
 |
|
|
|
2-комнатную квартиру | Беринга 2/2 (1)  Октябрьский район кирпич Год постройки:1977 | 4 этаж 5 всего | 45.6 м2 31.3 м2 жилая 5.2 м2 кухня | 4650 т.р. 101.97 за м2 |
|
|
|
06 ноября 2025.
КОНТАКТ: Любовь
ТЕЛ:
.
РУСънедвижимость
|
 |
|
|
|
2-комнатную квартиру | Иркутский тракт 104 (1)  Октябрьский район Год постройки:1974 | 5 этаж 5 всего | 40 м2 30 м2 жилая 5 м2 кухня | 4499 т.р. 112.48 за м2 |
|
|
|
04 декабря 2025.
КОНТАКТ: Шаронова Мария Андреевна
ТЕЛ:
.
Компания ЭТАЖИ
|
 |
|
Недвижимоcть на карте
 |
 |
Поиск по критериям |
+469 |
 |
9302 |
 |
|
|
|
 |
реклама

|
|
|
 |
|
Предложений:285
|
|
|
Предложений:781
|
|
|
Предложений:18
|
|
|
Предложений:980
|
|
|
Предложений:52
|
|
|
Предложений:32
|
|
|
Предложений:290
|
| |
|
|
|
|
 |
|
 |
|