слабый снег, ветер: 4 м/c, З, давление: 2 мм рт.ст., влажность: 34% -5°
Сделать стартовой

Продам 1-комнатную квартиру

Объявление № 5148814    
Квартира

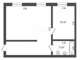
Количество комнат  1
Общая площадь  36 кв.м
жилая  23 кв.м
кухня  8.1 кв.м
Этаж/Этажность  1/4
Отделка  в хорошем состоянии
Санузел  совмещенный
в здании

Северск, Ленина 28а  (1)
Этажность  4
Вид  вторичное
Описание



Продается однокомнатная квартира площадью 36 м расположенная на первом этаже кирпичного дома в тихом и благоустроенном районе. Высокий цокольный этаж обеспечивает дополнительную защиту от влаги и шума, а окна выходят во внутренний двор, гарантируя спокойную атмосферу без посторонних звуков. Квартира сдана с качественным современным ремонтом. Отдельная кухня более 8 м2 дает возможность обустроить обеденную зону, а просторная комната позволяет комфортно организовать пространство. Дом находится в тихом уютном районе. В двух минутах ходьбы от дома находится аллея для прогулок и набережная реки, что делает локацию привлекательной для тех, кто ценит сочетание городского комфорта и близости к природе. Документы готовы к сделке. Для просмотра и дополнительных вопросов доступна в любое удобное время.
Код пользователя: 129238
Номер в базе: 9258057
Карта    

Уменьшить
Увеличить
Условия

2 450 000 руб.
  (68 060 руб. за м2).

Контактная информация

Контактное лицо: Анна

Телефон:

Компания ЭТАЖИ, агентство недвижимости

Объявление № 5148814     Статистика

Опубликовал: ries_etagi
Опубликовано: 24 ноября 2025
Истекает: 25 декабря 2025
Статус: Опубликовано Опубликовано
Поделиться

Похожие варианты (1) На карте

1-комнатную
квартиру
Северск, Транспортная 32  (1)
Другое
Год постройки:2006
4 этаж
5 всего
32.2 м2
17 м2 жилая
10 м2 кухня
2500 т.р.
77.64 за м2
Поднять объявление Авторизуйтесь, чтобы добавить в избранное Авторизуйтесь, чтобы оставить заметку Авторизуйтесь, чтобы отправить объявление по почте Поделиться ссылкой
04 декабря 2025.     КОНТАКТ: Анна     ТЕЛ: .     Компания ЭТАЖИ
Добавить объявление
Недвижимоcть на карте
Поиск по критериям +343 9262

ПРОДАЮ

ОБМЕН

СДАЮ

СПЕЦИАЛЬНЫЕ ПРЕДЛОЖЕНИЯ (50)

Агентства недвижимости 

Самолет плюс - центр Томск

Предложений:281

Алатарцев.Недвижимость

Предложений:781

Грасиона

Предложений:18

Компания ЭТАЖИ

Предложений:959

ТДСК Инвест

Предложений:52

Агама

Предложений:32

Жилфонд

Предложений:291