облачность, ветер: 5 м/c, СЗ, давление: 2 мм рт.ст., влажность: 33% -8°
Сделать стартовой

Продам 1-этажный кирпичный коттедж

Объявление № 5162814    
Дом

ДНП Слобода Вольная
Томский район
Отделка  черновая отделка
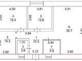
Общая площадь  106.4 кв.м
Площадь участка  6 сот
Этажность  1
Материал  кирпич
Тип дома  коттедж
Есть центральные коммуникации: электричество, водоснабжение, канализация, отопление.
Описание

Собственник. Электричество заведено в дом
Канализация заведена в дом
Вода заведена в дом
Газ на границе соседнего участка

Рассмотрю обмен на квартиру в Кировском районе
Карта    

Уменьшить
Увеличить
Условия

6 950 000 руб.
  (65 320.0 руб. за м2). Обмен. Ипотека. Документы готовы.

Контактная информация

Контактное лицо: Александр

Телефон:

Объявление № 5162814     Статистика

Опубликовал: Sanyad85
Опубликовано: 23 октября 2025
Истекает: 21 января 2026
Статус: Опубликовано Опубликовано
Поделиться

Похожие варианты (43) На карте

дом
1 этаж
3 комнаты
Солнечный проезд (ДНП Слобода Вольная)
Томский район
106.4 м2
6 сот
6950 т.р.
65.32 за м2
Поднять объявление Авторизуйтесь, чтобы добавить в избранное Авторизуйтесь, чтобы оставить заметку Авторизуйтесь, чтобы отправить объявление по почте Поделиться ссылкой
30 ноября 2025.     КОНТАКТ: Евгений     ТЕЛ: .     Компания ЭТАЖИ
дом
1 этаж
3 комнаты
Солнечный проезд (ДНП Слобода Вольная)
Томский район
кирпич
106.4 м2
80 м2 жилая
6 сот
6950 т.р.
65.32 за м2
Поднять объявление Авторизуйтесь, чтобы добавить в избранное Авторизуйтесь, чтобы оставить заметку Авторизуйтесь, чтобы отправить объявление по почте Поделиться ссылкой
12 ноября 2025.     КОНТАКТ: Процман Анжелика     ТЕЛ: .     Города, агентство недвижимости
дом
1 этаж
3 комнаты
Мира (пос. Петровский участок)
Томский район
дерево
138 м2
9 сот
6950 т.р.
50.36 за м2
Поднять объявление Авторизуйтесь, чтобы добавить в избранное Авторизуйтесь, чтобы оставить заметку Авторизуйтесь, чтобы отправить объявление по почте Поделиться ссылкой
01 декабря 2025.     КОНТАКТ: Оксана     ТЕЛ: .     Форум
дом
1 этаж
3 комнаты
Мира (Петровский Участок)
Томский район
138 м2
8 сот
7000 т.р.
50.72 за м2
Поднять объявление Авторизуйтесь, чтобы добавить в избранное Авторизуйтесь, чтобы оставить заметку Авторизуйтесь, чтобы отправить объявление по почте Поделиться ссылкой
25 ноября 2025.     КОНТАКТ: Шевелев Максим Валерьевич     ТЕЛ: .     Компания ЭТАЖИ
дом
1 этаж
2 комнаты
село Зоркальцево, Клубная 6
Томский район
49.2 м2
30 м2 жилая
13 сот
6800 т.р.
138.21 за м2
Поднять объявление Авторизуйтесь, чтобы добавить в избранное Авторизуйтесь, чтобы оставить заметку Авторизуйтесь, чтобы отправить объявление по почте Поделиться ссылкой
26 ноября 2025.     КОНТАКТ: Надежда     ТЕЛ: .     ЭРА, агентство недвижимости
Добавить объявление
Недвижимоcть на карте
Поиск по критериям +428 9280

ПРОДАЮ

ОБМЕН

СДАЮ

СПЕЦИАЛЬНЫЕ ПРЕДЛОЖЕНИЯ (50)

Агентства недвижимости 

Самолет плюс - центр Томск

Предложений:283

Алатарцев.Недвижимость

Предложений:781

Грасиона

Предложений:18

Компания ЭТАЖИ

Предложений:957

ТДСК Инвест

Предложений:52

Агама

Предложений:32

Жилфонд

Предложений:290