|
|
реклама
Рекламодатель: ООО "УК "КонтинентЪ", ИНН 7017208000 ИД креатива: LdtCKW5Ps

| |
|
Продам 3-комнатную квартиру
|
|
|
|
|
Объявление № 5165648
|
|
|
|
|
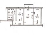
| Количество комнат |
3 |
| Общая площадь |
56.8 кв.м |
| жилая |
39.2 кв.м |
| кухня |
5 кв.м |
| Этаж/этажность |
2/5 |
| Отделка |
требуется ремонт |
| Санузел |
раздельный |
| Балкон/лоджия |
балкон, остекление |
|
|
|
Ивана Черных 121 (1)  | | Октябрьский район |
| Этажность |
5 |
| Материал |
панель |
| Год постройки |
1968 |
| Вид |
вторичное |
|
|
|
| Описание |
|
Предлагаем квартиру с оригинальной планировкой в районе с развитой инфраструктурой: больницы, школы, детские сады- всё рядом, остановка транспорта, магазины, дк Авангард в шаговой доступности. Один взрослый собственник, в квартире никто не прописан. Квартира требует ремонта, что позволит вам воплотить свои мечты в реальность. Ключи в агентстве, звоните, записывайтесь на просмотр.
|
| Условия |
|
|
4 700 000 руб.
|
(82 750 руб. за м2).
|
|

|

|
Объявление № 5165648
Статистика
|
|
| Опубликовал: |
an-katerina |
| Опубликовано: |
25 ноября 2025 |
| Истекает: |
09 января 2026 |
| Статус: |
Опубликовано
|
|
|
 |
|
|
 |
|
|
|
|
|
3-комнатную квартиру | Бела Куна 24 (1)  Октябрьский район панель Год постройки:1971 | 5 этаж 5 всего | 59.4 м2 6 м2 кухня | 4650 т.р. 78.28 за м2 |
|
|
|
01 декабря 2025.
КОНТАКТ: Евгений
ТЕЛ:
.
ABC
|
 |
|
|
|
3-комнатную квартиру | Сергея Лазо 14 (1)  Октябрьский район кирпич Год постройки:1969 | 4 этаж 5 всего | 53 м2 35.6 м2 жилая 5 м2 кухня | 4700 т.р. 88.68 за м2 |
|
|
|
24 ноября 2025.
КОНТАКТ: Юлия
ТЕЛ:
.
Союз Риэлторов
|
 |
|
|
|
4-комнатную квартиру | Бела Куна 12/1 (1)  Октябрьский район панель Год постройки:1979 | 1 этаж 5 всего | 60 м2 43.4 м2 жилая 6 м2 кухня | 4800 т.р. 80 за м2 |
|
|
|
02 декабря 2025.
КОНТАКТ: Павел
ТЕЛ:
.
Жилфонд
|
 |
|
|
|
1-комнатную квартиру | Лазарева 3б (1)  Октябрьский район Год постройки:1968 | 1 этаж 5 всего | 50 м2 27 м2 жилая 18 м2 кухня | 4800 т.р. 96 за м2 |
|
|
|
22 ноября 2025.
КОНТАКТ: Лидия
ТЕЛ:
.
Компания ЭТАЖИ
|
 |
|
|
|
1-комнатную квартиру | Сергея Лазо 27/3 (1) Октябрьский район кирпич Год постройки:2006 | 1 этаж 10 всего | 35.5 м2 20.5 м2 жилая 8 м2 кухня | 4800 т.р. 135.21 за м2 |
|
|
|
24 октября 2025.
КОНТАКТ: Наталья Николаевна
ТЕЛ:
.
Жилфонд
|
 |
|
Недвижимоcть на карте
 |
 |
Поиск по критериям |
+9 |
 |
9214 |
 |
|
|
|
 |
реклама

|
|
|
 |
|
Предложений:273
|
|
|
Предложений:781
|
|
|
Предложений:17
|
|
|
Предложений:993
|
|
|
Предложений:51
|
|
|
Предложений:32
|
|
|
Предложений:287
|
| |
|
|
|
|
 |
|
 |
|