|
|
реклама
Рекламодатель: ООО "УК "КонтинентЪ", ИНН 7017208000 ИД креатива: LdtCKW5Ps

| |
|
Продам 3-комнатную квартиру
|
 |
|
|
|
Объявление № 5169272
|
|
|
|
|
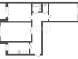
| Количество комнат |
3 |
| Общая площадь |
84 кв.м |
| жилая |
65 кв.м |
| кухня |
14 кв.м |
| Этаж/этажность |
5/7 |
| Отделка |
в хорошем состоянии |
| Санузел |
совмещенный |
| Балкон/лоджия |
балкон |
|
|
|
Больничная 8а (4)  | | Октябрьский район |
| Этажность |
7 |
| Материал |
кирпич |
| Год постройки |
2009 |
| Вид |
вторичное |
|
|
|
| Описание |
|
Продаётся 3-х комнатная квартира в хорошем состоянии. Общая площадь 84 кв.м.+ лоджия 7 кв.м. Тёплые полы по всей квартире. Остаётся мебель и бытовая техника. Дом расположен в центре города в тихом месте, вдали от шумных улиц. Развитая инфраструктура. Придомовая территория оборудована парковочными местами и детской площадкой. Все необходимое рядом: магазины, супермаркеты, аптеки, школы и дошкольные учреждения, остановки общественного транспорта. Для отдыха и прогулок в шаговой доступности Белое озеро, Михайловская роща. Рядом детские сады, школы, гимназия, ТГАСУ. Супермаркеты: Абрикос, Магнит, Пятёрочка, Ярче. Код пользователя: 190383 Номер в базе: 8847996 |
| Условия |
|
|
12 600 000 руб.
|
(150 000 руб. за м2).
|
|

|

|
Объявление № 5169272
Статистика
|
|
| Опубликовал: |
ries_etagi |
| Опубликовано: |
26 ноября 2025 |
| Истекает: |
27 декабря 2025 |
| Статус: |
Опубликовано
|
|
|
 |
|
|
 |
|
|
|
|
|
3-комнатную квартиру | Больничная 8а (4)  Октябрьский район кирпич Год постройки:2009 | 5 этаж 7 всего | 84 м2 50 м2 жилая 14 м2 кухня | 12600 т.р. 150 за м2 |
|
|
|
31 октября 2025.
КОНТАКТ: Собственник
ТЕЛ:
.
|
 |
|
|
|
3-комнатную квартиру | Пушкина 61/10 усл (4)  Октябрьский район монолит | 1 этаж 10 всего | 77.5 м2 51.2 м2 жилая 9.8 м2 кухня | 12693.322 т.р. 163.78 за м2 |
|
|
|
13 ноября 2025.
КОНТАКТ: Менеджер отдела продаж
ТЕЛ:
.
1&3
|
 |
|
|
|
2-комнатную квартиру | Больничная 8а (4)  Октябрьский район кирпич Год постройки:2009 | 4 этаж 7 всего | 63 м2 40 м2 жилая 14 м2 кухня | 12290 т.р. 195.08 за м2 |
|
|
|
01 декабря 2025.
КОНТАКТ: Процман Анжелика
ТЕЛ:
.
Города, агентство недвижимости
|
 |
|
|
|
2-комнатную квартиру | Соляной переулок 28а (9) Октябрьский район кирпич Год постройки:2023 | 2 этаж 6 всего | 68.9 м2 | 13000 т.р. 188.68 за м2 |
|
|
|
30 октября 2025.
КОНТАКТ: Максим
ТЕЛ:
.
|
 |
|
Недвижимоcть на карте
 |
 |
Поиск по критериям |
+472 |
 |
9301 |
 |
|
|
|
 |
реклама

|
|
|
 |
|
Предложений:288
|
|
|
Предложений:781
|
|
|
Предложений:18
|
|
|
Предложений:993
|
|
|
Предложений:52
|
|
|
Предложений:32
|
|
|
Предложений:291
|
| |
|
|
|
|
 |
|
 |
|