облачность, ветер: 5 м/c, СЗ, давление: 2 мм рт.ст., влажность: 33% -6°
Сделать стартовой

Продам 4-комнатную квартиру

Объявление № 5170672    
Квартира

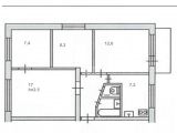
Количество комнат  4
Общая площадь  60 кв.м
жилая  45 кв.м
кухня  6 кв.м
Этаж/этажность  2/5
Отделка  требуется ремонт
Санузел  раздельный
Балкон/лоджия  балкон
в здании

Ивановского 5  (1)  Показать на панораме
Октябрьский район
Этажность  5
Материал  панель
Год постройки  1973
Вид  вторичное
Описание

Хорошее предложение для тех кто хочет купить недорого!!! и сделать ремонт под себя! Дом расположен в глубине квартала, окна выходят во двор. Панельный дом 1973 года постройки. широкие и удобные лестничные марши, чистый и ухоженный подъезд. Квартира расположена на комфортном 2 этаже, площадь 59.5 кв.м. Высота потолков в квартире 2.5м. Состояние квартиры- под ремонт. Локация Один из самых активно развивающихся районов города. Инфраструктура в шаговой доступности магазины, аптеки, школы и д. сады, спортивные центры для детей и взрослых. остановки общественного транспорта. Возле дома есть гараж, который так же в продаже. При покупке квартиры и гаража -скидка! Легко купить без долгов и обременений, два взрослых собственника. Подходит под любой вид расчета. Рады будем ответить на все ваши вопросы. Звоните и записывайтесь на показ объекта прямо сейчас!
Карта     Показать панораму

Уменьшить
Увеличить
Условия

4 350 000 руб.
  (72 500 руб. за м2).

Контактная информация

Контактное лицо: Нина Викторовна

Телефон:

Самолет плюс - центр Томск, ООО

Объявление № 5170672     Статистика

Опубликовал: group2-p24
Опубликовано: 02 декабря 2025
Истекает: 16 января 2026
Статус: Опубликовано Опубликовано
Поделиться

Похожие варианты (2) На карте

2-комнатную
квартиру
Мечникова 1д  (6)
Октябрьский район
панель
Год постройки:2016
16 этаж
17 всего
34.5 м2
16.2 м2 жилая
9 м2 кухня
4400 т.р.
127.54 за м2
Поднять объявление Авторизуйтесь, чтобы добавить в избранное Авторизуйтесь, чтобы оставить заметку Авторизуйтесь, чтобы отправить объявление по почте Поделиться ссылкой
04 декабря 2025.     КОНТАКТ: Сергей     ТЕЛ: .     Самолет плюс - центр Томск
1-комнатную
квартиру
Дизайнеров 9а  (4)
Октябрьский район
панель
Год постройки:2018
4 этаж
10 всего
39.1 м24300 т.р.
109.97 за м2
Поднять объявление Авторизуйтесь, чтобы добавить в избранное Авторизуйтесь, чтобы оставить заметку Авторизуйтесь, чтобы отправить объявление по почте Поделиться ссылкой
20 ноября 2025.     КОНТАКТ: Игорь Тиханкин     ТЕЛ: .     Лига
Добавить объявление
Недвижимоcть на карте
Поиск по критериям +420 9264

ПРОДАЮ

ОБМЕН

СДАЮ

СПЕЦИАЛЬНЫЕ ПРЕДЛОЖЕНИЯ (50)

Агентства недвижимости 

Самолет плюс - центр Томск

Предложений:283

Алатарцев.Недвижимость

Предложений:781

Грасиона

Предложений:18

Компания ЭТАЖИ

Предложений:959

ТДСК Инвест

Предложений:52

Агама

Предложений:32

Жилфонд

Предложений:290