|
|
реклама
Рекламодатель: ООО "УК "КонтинентЪ", ИНН 7017208000 ИД креатива: LdtCKW5Ps

| |
|
Продам 1-комнатную квартиру
|
 |
|
|
|
Объявление № 5172022
|
|
|
|
|
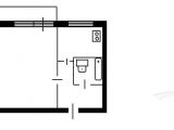
| Количество комнат |
1 |
| Общая площадь |
31 кв.м |
| Этаж/этажность |
3/5 |
| Санузел |
совмещенный |
| Балкон/лоджия |
балкон |
|
|
|
Усова 27а (Щорса 1) (2)  | | Кировский район |
| Этажность |
5 |
| Материал |
кирпич |
| Год постройки |
1964 |
| Вид |
вторичное |
|
|
|
| Описание |
|
| 1-комнатная квартира в центре Кировского района, дом без газа, комфортный 3 этаж, в шаговой доступности пл.Кирова, вокзал Томск 1, Сибирский лицей, гимназия № 18, Кардиоцентр, Дворцовый сквер. В подарок покупателю остаётся вся мебель и бытовая техника. Подходит как для проживания, так и под аренду (квартиры в этом районе сдаются очень быстро). Юридически всё просто-один взрослый собственник, без долгов и обременений. |
| Условия |
|
|
3 900 000 руб.
|
(125 810 руб. за м2). Обмен. Ипотека. Материнский капитал. Документы готовы.
|
|

|

|
Объявление № 5172022
Статистика
|
|
| Опубликовал: |
an_laguna |
| Опубликовано: |
09 декабря 2025 |
| Истекает: |
23 января 2026 |
| Статус: |
Опубликовано
|
|
|
|
Недвижимоcть на карте
 |
 |
Поиск по критериям |
+4 |
 |
9226 |
 |
|
|
|
 |
реклама

|
|
|
 |
|
Предложений:295
|
|
|
Предложений:775
|
|
|
Предложений:18
|
|
|
Предложений:993
|
|
|
Предложений:57
|
|
|
Предложений:30
|
|
|
Предложений:287
|
| |
|
|
|
|
 |
|
 |
|