слабый снег, ветер: 1 м/c, Ю, давление: 2 мм рт.ст., влажность: 35% -11°
Сделать стартовой

Продам 2-комнатную квартиру

Объявление № 5173080    
Квартира

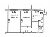
Количество комнат  2
Общая площадь  54 кв.м
жилая  32.2 кв.м
кухня  8.1 кв.м
Этаж/этажность  4/9
Отделка  в хорошем состоянии
Санузел  раздельный
Балкон/лоджия  балкон, остекление
в здании

Лебедева 39  (1)  Показать на панораме
Советский район
Этажность  9
Материал  панель
Год постройки  1986
Вид  вторичное
Есть пластиковые окна.
Описание

В центре Советского района по адресу: ул. Лебедева, 39 в продаже 2к квартира. Полностью готова для проживания. Общ.пл. 54 м2 (без учета застекленного балкона). Комнаты и санузел раздельные, есть вместительная гардеробная. Квартира освобождена. Новым собственникам в подарок остаётся вся мебель и техника. Квартира без обременений и перепланировок. Напротив дома детский сад. В пешей доступности школы 40 и 4. Все сетевые магазины.
Карта     Показать панораму

Уменьшить
Увеличить
Условия

7 250 000 руб.
  (134 260 руб. за м2). Ипотека. Материнский капитал.

Контактная информация

Контактное лицо: Анастасия Олеговна

Телефон:

Агентство недвижимости "Лагуна"

Объявление № 5173080     Статистика

Опубликовал: an_laguna
Опубликовано: 16 декабря 2025
Истекает: 30 января 2026
Статус: Опубликовано Опубликовано
Поделиться

Похожие варианты (23) На карте

2-комнатную
квартиру
Киевская 28  (2)  Показать на панораме
Советский район
панель
Год постройки:1992
1 этаж
10 всего
54 м2
32 м2 жилая
10 м2 кухня
7100 т.р.
131.480 за м2
Поднять объявление Авторизуйтесь, чтобы добавить в избранное Авторизуйтесь, чтобы оставить заметку Авторизуйтесь, чтобы отправить объявление по почте Поделиться ссылкой
28 ноября 2025.     КОНТАКТ: с ув. Евгения     ТЕЛ: .     Агентство недвижимости Аврора
2-комнатную
квартиру
Фрунзе проспект 98  (2)  Показать на панораме
Советский район
панель
Год постройки:1982
7 этаж
9 всего
54 м2
34 м2 жилая
7 м2 кухня
7195 т.р.
133.24 за м2
Поднять объявление Авторизуйтесь, чтобы добавить в избранное Авторизуйтесь, чтобы оставить заметку Авторизуйтесь, чтобы отправить объявление по почте Поделиться ссылкой
19 декабря 2025.     КОНТАКТ: Наталья     ТЕЛ: .     Алатарцев.Недвижимость
2-комнатную
квартиру
Фрунзе проспект 98  (2)  Показать на панораме
Советский район
панель
Год постройки:1982
7 этаж
9 всего
54 м2
7 м2 кухня
7195 т.р.
133.24 за м2
Поднять объявление Авторизуйтесь, чтобы добавить в избранное Авторизуйтесь, чтобы оставить заметку Авторизуйтесь, чтобы отправить объявление по почте Поделиться ссылкой
17 декабря 2025.     КОНТАКТ: Ирина     ТЕЛ: .     Агама
2-комнатную
квартиру
Фрунзе проспект 102  (1)  Показать на панораме
Советский район
кирпич
Год постройки:1977
8 этаж
9 всего
44.2 м27200 т.р.
162.9 за м2
Поднять объявление Авторизуйтесь, чтобы добавить в избранное Авторизуйтесь, чтобы оставить заметку Авторизуйтесь, чтобы отправить объявление по почте Поделиться ссылкой
25 сентября 2025.     КОНТАКТ: Алексей Карбышев     ТЕЛ: .    
2-комнатную
квартиру
Киевская 1  (15)
Советский район
кирпич
Год постройки:2020
14 этаж
19 всего
38 м2
33 м2 жилая
7090 т.р.
186.58 за м2
Поднять объявление Авторизуйтесь, чтобы добавить в избранное Авторизуйтесь, чтобы оставить заметку Авторизуйтесь, чтобы отправить объявление по почте Поделиться ссылкой
15 декабря 2025.     КОНТАКТ: Юлия     ТЕЛ: .     Союз Риэлторов
Добавить объявление
Недвижимоcть на карте
Поиск по критериям +347 8939

Продаю

ОБМЕН

Сдаю

СПЕЦИАЛЬНЫЕ ПРЕДЛОЖЕНИЯ (56)

Агентства недвижимости 

Самолет плюс - центр Томск

Предложений:286

Алатарцев.Недвижимость

Предложений:767

Грасиона

Предложений:19

Компания ЭТАЖИ

Предложений:917

ТДСК Инвест

Предложений:55

Агама

Предложений:34

Жилфонд

Предложений:275